10 Snowberry Lane
$2,990.00
Leased
Property Description
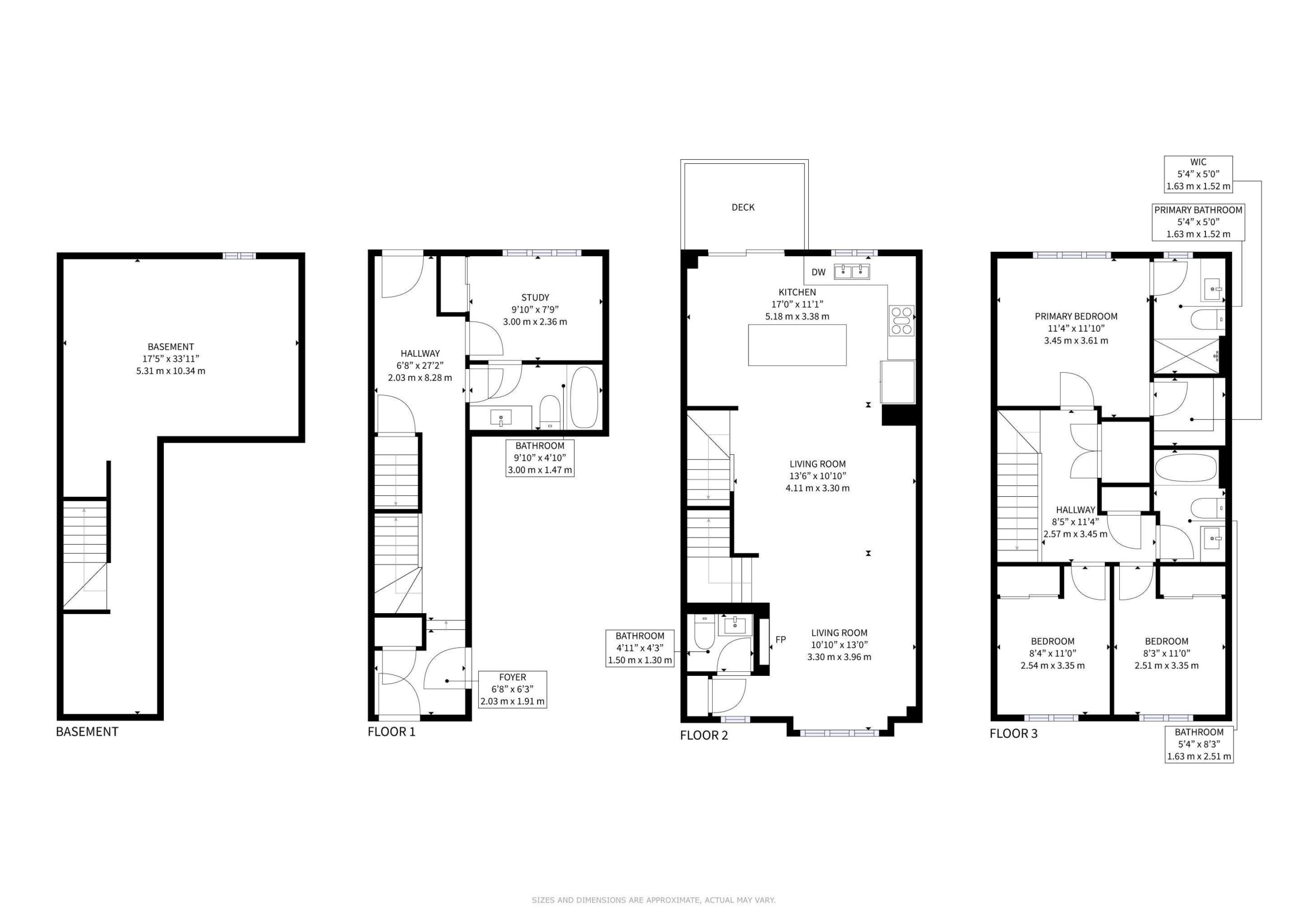
Welcome to this beautifully upgraded townhouse, nestled in the highly sought-after Vincent neighborhood. Just over five years young, this home is a perfect blend of modern elegance and country-chic charm! Crafted with care, comfort and thoughtful design in every corner.
Step into the second floor and experience a bright, open-concept layout ideal for entertaining and simply enjoying the warmth of natural light pouring in through large windows. The kitchen is the true heart of this home, light-filled and welcoming! It features a stunning quartz island, sleek stainless steel appliances and direct access to a walkout deck perfect for your future “go-to” spot for summer BBQs and peaceful morning coffees.
On the third level, you’ll find three generously sized bedrooms, including a serene primary suite complete with a private ensuite and an expansive walk-in closet. With the convenience of laundry on this level, your daily routines become a breeze!
The main floor offers flexibility with an additional bedroom and full bathroom making it the perfect setting for a home office or private guest retreat. You’ll be welcomed by a fully fenced backyard to enjoy a tranquil private oasis. The unfinished basement awaits your personal vision, whether it’s a home gym, or extra living space, the possibilities are endless.
Utilities to be paid by renter along with yard and seasonal maintenance.
Move-in ready and located just minutes from top-rated schools, parks, 7 Min to the New Go Station and LRT, highways, community center and all amenities, this is more than a home; it’s a lifestyle waiting for you!
Come and discover where your next chapter begins.
Property Details
Rooms: 4
Bathrooms: 4
Property Type: Townhouse
Neighbourhood: Vincent
Square Footage: 1500-2000
Lot Size: 18 x 78.8
Parking: 2



































